Baker's Best Bakery Equipment - Keep America Baking!

<< Back to All Ovens

Mini Combo Ovens

Click for larger photo.

Mini Combo Ovens

Mini Combo
-- Versatile
-- Compact
-- Mini Rack Upper Chamber (Gas or Electric)
-- Great Steam Throughout
-- Optional Proofbox
-- Available on Stand


 
Mini Combo Plus Oven
 

Mini Combo Plus
-- Versatile
-- Compact
-- Mini Rack Upper Chamber (Gas or Electric)
-- Mini Electric Deck Oven
-- Great Steam Throughout
-- Optional Proofbox
-- Available on Stand

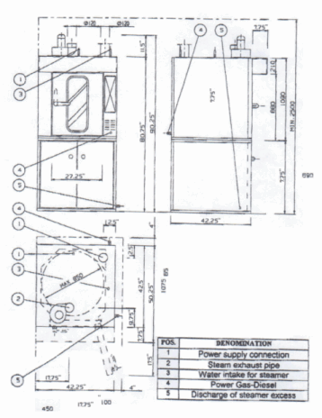
Mini Combo Dimensions

Mini Combo Dimensions

Model
Pan Capacity
Exterior Dimensions
W x D x H
Weight
AMPS
Mini Combo
Click for spec sheet.
8 Pans
43" x 48" x 78"
836
44
Mini Combo Plus
Click for spec sheet.
8 Pans + 2 Pans (deck)
43" x 60" x 93"
1,342
21

Copyright © 2004, Baker's Best, Inc.